欢迎来到安平县汉科过滤科技有限公司!

安平县汉科过滤科技有限公司

服务热线

13171718191

Y型过滤器

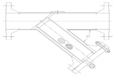
  • ▶ Y型过滤器(焊接) ▶ Y型过滤器(铸件) 精密设备防护盾:常用于含油污水的处理,45倾斜滤网+底部排污的设计,可将压损低至0.05MPa,5μm级精度高效清除铁锈、油污。依据ASME B31.3 / ASME B16.5 / AS...
  • 咨询热线:13171718191
  • 产品详情

  • 联系我们

▶ Y型过滤器(焊接)


图片1.png图片2.png
图片3.png图片4.png


▶ Y型过滤器(铸件)


图片1.png图片2.png
图片3.png图片4.png


精密设备防护盾:

常用于含油污水的处理,45°倾斜滤网+底部排污的设计,可将压损低至0.05MPa,5μm级精度高效清除铁锈、油污。

依据ASME B31.3 / ASME B16.5 / ASME B16.47等设计规范,

设计尺寸涵盖管口尺寸2’’ 4” 6” 8” 10” 12” 14” 16” 18” 20” 24’’

法兰等级150#—2500#等多种规格。

部分产品可采用内部FBE喷涂或堆焊等工艺提升耐磨性及抗腐蚀性,为仪表阀门提供极致保护。

紧凑空间专家:低温碳钢/双相不锈钢/超级双相钢材质打造,适用于甲板密集区,RO膜前预处理首选。

咨询:Y型过滤器
* 为必填项

  • *

返回顶部